Retour
Ajouter à la sélection

Appartement
Nice Madeleine

  • Ref. 86662309
  • 2 chambres
  • 1 salle de bain
  • 65 m²
  • 299 000 €

Maison 3 pièces – Jardin privatif – Nice

À proximité immédiate des commerces, transports et écoles, tout en étant en retrait de l’animation, cette maison de 63 m² sur deux niveaux offre un cadre de vie paisible à quelques minutes du centre de Nice.

Exposée Sud-Ouest, elle profite d’une belle luminosité. Le séjour avec poutres apparentes s’ouvre sur une terrasse et un jardin privatif d’environ 110 m², arboré et sans vis-à-vis. La cuisine semi-ouverte avec bar apporte une touche conviviale à l’espace de vie.

À l’étage, deux chambres confortables ainsi qu’une salle de bains avec WC composent l’espace nuit. Un second WC indépendant, un coin bureau ou rangement, une buanderie et un abri de jardin complètent l’ensemble.

Place de stationnement privative. Petite copropriété de 4 lots au calme.

Prix : 299 000 € honoraires inclus


Les informations sur les risques auxquels ce bien est exposé sont disponibles sur le site : georisques.gouv.fr

Imprimer cette annonce

Résumé

  • Pièces 3 pièces
  • Surface 65 m²
  • Chauffage Radiateur, Electrique, Individuel
  • Eau chaude Chauffe-eau
  • Eau usées Tout à l'égout
  • Etat À rénover
  • Exposition Ouest Sud
  • Vue Jardin
  • Disponibilité Libre

Prestations

  • Éclairage extérieur

Pièces

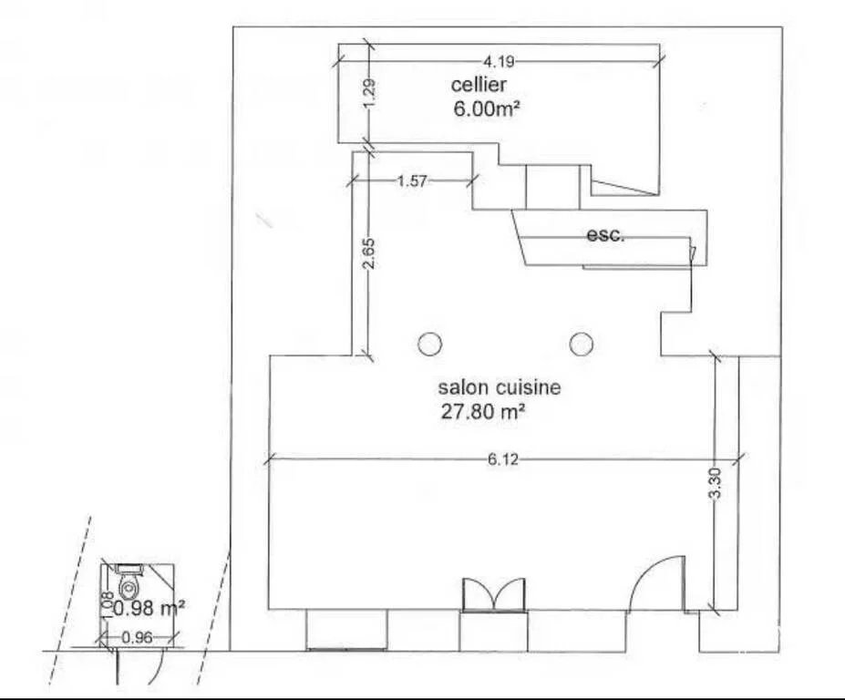
  • 1 Séjour/cuisine 27.8 m²
  • 2 Chambres 9 m², 13.3 m²
  • 1 Salle de douche 3.65 m²
  • 1 Parking extérieur
  • 1 Jardin 110 m²
  • 1 Abri de jardin

Proximités

  • Aéroport
  • Bus
  • Centre ville
  • Commerces
  • Hôpital/clinique
  • Médecin
  • Mer
  • Parc
  • Supermarché

Efficacité énergétique

Énergie - Consommation conventionnelle

En cliquant sur "J'accepte", vous autorisez l'utilisation de cookies afin de vous assurer une experience optimale sur ce site.

En savoir plus J'accepte